Ein neues Zuhause für über 50 Schülerinnen und Schüler aus dem Schächental
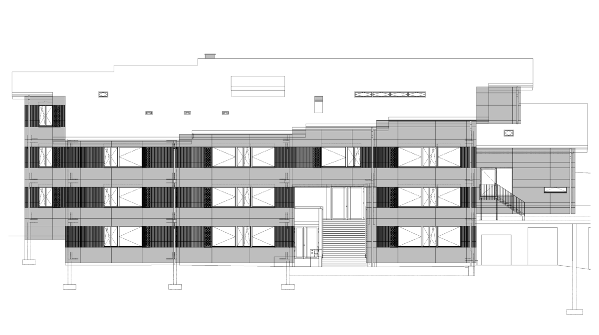
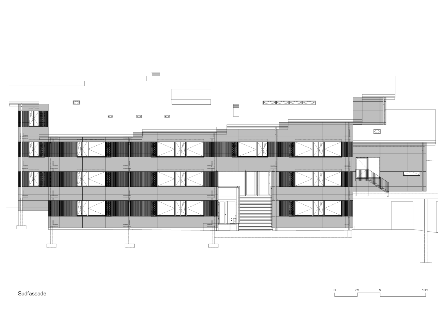
Das Kreisschulhaus in Spiringen umfasst die Oberstufe für die Gemeinden Unterschächen und Spiringen mit insgesamt 9 Klassenzimmern, diversen Fachräumen wie beispielsweise eine Schulküche sowie eine Turnhalle mit Garderoben und Nasszellen. Nach der Erstellung des westlichen Gebäudetrakts von 1974 wurde das Schulhaus 10 Jahre später, östlich mit einem zusätzlichen Bauvolumen ergänzt. Dieser beinhaltet weitere Schulräume, eine Treppenanlage sowie eine Turnhalle mit einem neuen Vordach.
Mit dem Baustart im Jahr 2018 erfolgte die erste der vier Etappen – die Sanierung der Schulküche und der Garderoben mit Nasszellen. In den nachfolgenden Jahren wurde das Schulhaus mit einer Rampe und Liftanlage IV-tauglich gemacht, die Erdbebentauglichkeit mit statischen Massnahmen erfüllt sowie Brandschutzbauteile und Notausgänge eingebaut. Sämtliche Oberflächen der Klassenzimmer wurden saniert, neu installiert sowie mit variablen Möblierungen bestückt.
Mit der Sanierung der Gebäudehülle erfolgte eine zusätzliche, äussere Schutzschicht aus kanellurenartigen Fassadeneternitplatten. Die mäandrierenden Fassadenbänder erzeugen eine 3-dimmensionale Wirkung, welche sich bei unterschiedlichem Tageslicht verändert. Durch partielle Perforierungen der Eternitplatten ist eine witterungsunabhängige Nachtauskühlung der Räume möglich. Durch die Überdachung der ehemaligen Dachterrasse konnte ein neues, funktionales Lehrerzimmer geschaffen werden. Mehrheitlich erfolgten die Bauarbeiten während den Schulferien, sodass der Schulbetrieb nicht eingeschränkt werden musste.











