Attraktives Entree aus Eichenholz mit Bogengläsern
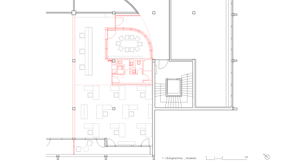
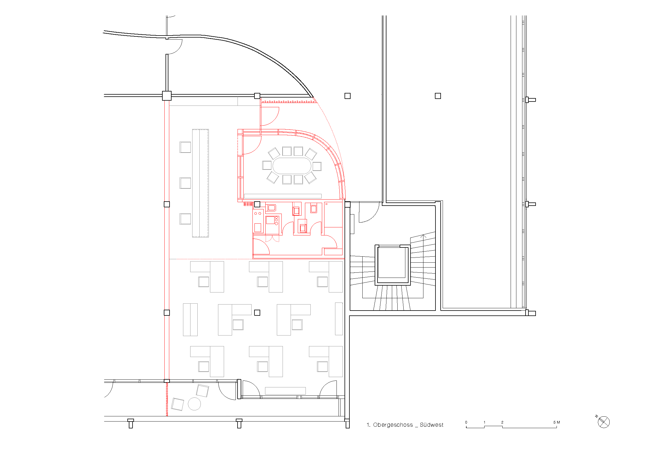
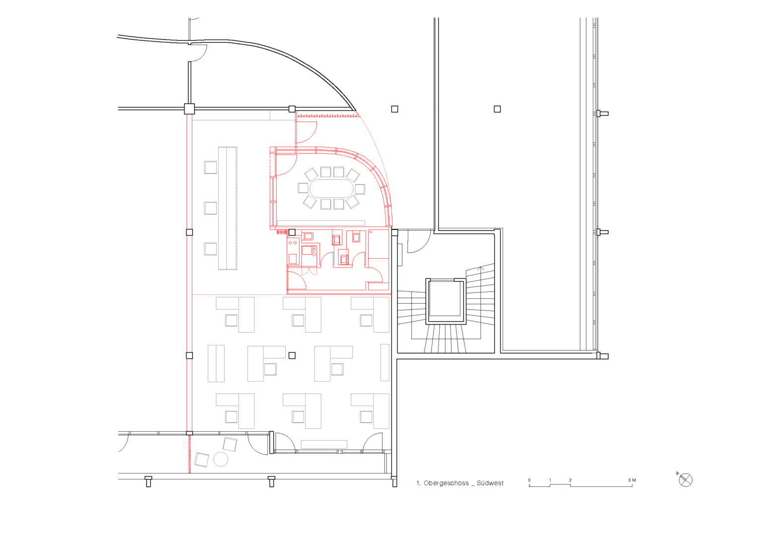
Die ehemaligen Produktionsräume der Bodenbelagsfabrik der Dätwyler AG bildeten Grundlage für den Einbau eines Büros. Eine viertelkreisförmige Pfostenriegelkonstruktion aus Eichenholz mit Bogengläsern führt zum Eingang nimmt Bezug zum Bestand. Gegenüberliegend und hinter Eichenholzstehlen verkleidet und auf Weissputz aufgespritzt das Identifikationslogo des Gebäudes – ein illuminiertes Lindenblatt. Die bestehenden Stützenraster, Unterzüge sowie Raumhöhen bis zu 340 cm waren massgeblich verantwortlich für die Struktur und Grösse der Raumzonen. Diese Konstruktionsmerkmale wurden unverkleidet belassen und sind als Zeitzeuge aus der Erstellungszeit wahrnehmbar. Der minimale Einbau fokussiert sich auf den Einbau eines Grossraumbüros mit einer separaten Raumzelle für Besprechungen. Angedockt dazu eine weitere Raumeinheit – eine Einfrontenkleinküche, welche sich mit Klappschiebetüren öffnen/schliessen lässt. Schwarze DD-Mattlackfronten und Granitflächen stehen in Kontrast zur feinstrukturierten sichtbetonfarbenen Wandverkleidung. Dahinter liegend Nasszellen mit WC- und Duschen-Anlagen aus Grau- und Grünfarbtönen. Ein homogener Eichenklebeparkett führt durch das Grossraumbüro.









