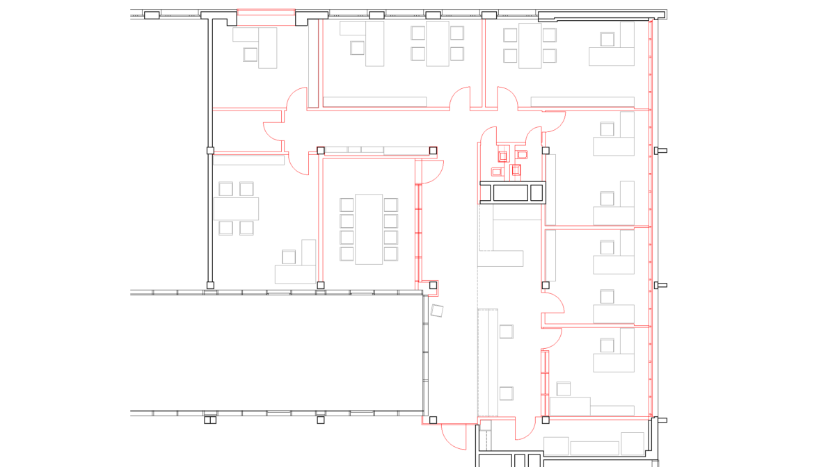
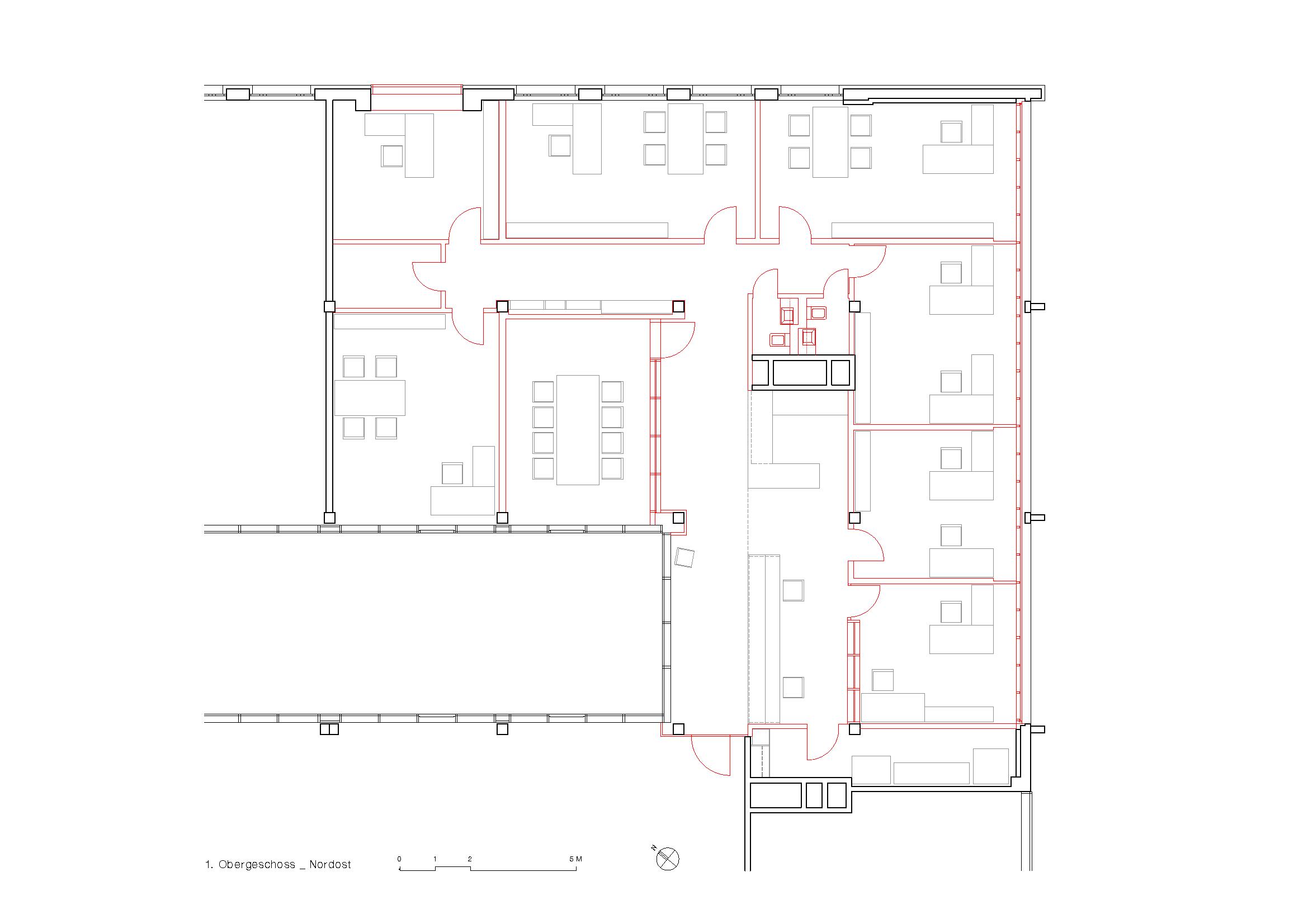
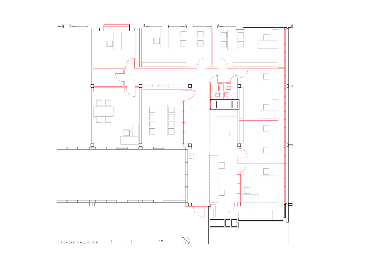
Arbeitsräume mit klugen Details
Die ehemaligen Produktionsräume der Bodenbelagsfabrik der Dätwyler AG bildeten die Grundlage für den Einbau eines Rechtsanwalts- und Notariatsbüros. Inmitten des Gevierts wurde ein Lichthof ausgespart. Die bestehenden Stützenraster, Unterzüge sowie Raumhöhen bis zu 340 cm waren massgeblich verantwortlich für die Struktur und Grösse der Raumzonen. Um einen zentralen Eingangsbereich und Korridor gruppieren sich Besprechungszimmer, Büros und eine Eingangstheke mit Cafébar. Der Deckenhorizont darüber wurde leicht abgesetzt, so dass eine wahrnehmbare Zonierung stattfindet. Ein feinmaschiges und goldfarbiges Netz filtriert das Kunstlicht und erzeugt eine samtfarbige Illuminierung. Diese stehen in Kontext zur rückseitigen Wandfront aus Travertinplatten und schwarzen, mattlackierten Möblierungen. Partielle neue Pfostenriegelkonstruktionen aus Eichenholz nehmen Bezug in Materialisierung und Grösse zum Bestand. Ein homogener, durchgefärbter Fliessbelag führt durch sämtliche Räume. Rosa- und Blaufarbtöne bestimmen das Farbkonzept zu den WC-Anlagen. Insgesamt umfasst der Einbau 11 Raumeinheiten.









