Sanierung sorgt für eindrückliche Energiebilanz
Das Wohn- und Geschäftsgebäude wurde 1974 vom Altdorf Architekten Alois Walker für das ehemalige Kinder- und Familienhilfswerk Uri geplant. Mit dem Rückzug der Schwestern im Jahr 2005 erfolgte 2022 eine Neukonzeption des Gebäudes an der Seedorferstrasse in Altdorf durch eine Sanierung und Aufstockung. Zwei zusätzliche Dachwohnungen wurden realisiert, welche sich würfelartig um die Aussenräume anordnen und mit dem Bestand verknüpfen.
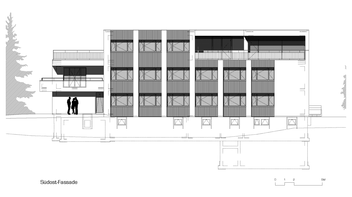
Das Haus hat eine DNA, welche sich massgeblich in der Vertikalität der Fassadenlisenen, zurückspringenden Fensterpartien und zeilenförmigen Anordnung der Raumzonen und Erschliessungen wiederspiegelt. Der Entwurf respektiert die bestehenden Fassaden- und Grundrissstrukturen aus der Bauzeit von 1974 und appliziert diese in der Aufstockung. Grossformatige und kannelurenartige Eternitplatten verstärken diese Thematik und stehen im Wechselspiel zum feinkörnigem Negativfassadenabrieb. Aus der Bauzeit vorhandene Materialien und Farben, wie beispielsweise die mit Urner Flusskies durchmischten Kunststeinbodenbeläge des Treppenhauses oder die purpurroten Fensterrähmen fanden in der Aufstockung ihre Wiederverwendung. Da die oberste Decke nur Netzarmiert und keine statischen Funktionen erfüllen konnte, erfolgte der Lastabtrag des Holzelementbaus ausschliesslich mit Vollholzböden und -decken auf die darunterliegenden Innenwände. Dank dem Einbau eines Liftkerns wurden zusätzliche, statische Verstärkungsziele erreicht. Mit der neuen, eingebauten Grundwasserwärmepumpe sowie der PV-Anlage auf dem Dach konnte der CO2-Austoss erheblich reduziert sowie dank Eigenproduktion nahezu 80% des Energiebedarfs selbst erzeugt werden – eine nachhaltige Bauweise, welche mit Fördergeldern unterstützt wurde.












